click to enlarge

 

 

 

 

 

 

 

 
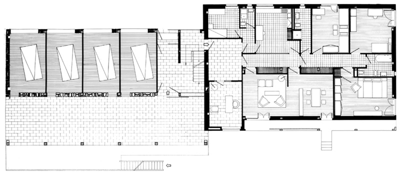
These are two buildings, one realized in 1951 with 4 housings and the other in 1954 with 18 housings. There are part of a small residential quarter, located West from the Olivetti factory in Ivrea. The first building is componed of uneven floors, in order to let a garden space to the ground floor house and a terrace to the first floor house. The living rooms are exposed towards West , the bedrooms towards East, in order to define two fronts clearly different. The West-sided front is characterized with a pensilina along the ground part of the building, which corresponds to the staircase for the terrace access from the ground level houses, and with white painted stainless steel grates diagonally disponed.
The 18 housings' building, is an experiment in order to display together three kinds of buildings as one, which is actually fascinating, specially when each part has three different architectures on their main fronts. Continuing this experiment to the backfronts, searching for unity instead of diversity and solving contradictions then, il gioco è fatto. The theme of the building as an architectural scene, the use of contradictory construction elements, the research of complexity in the designing approach- that was then theorized by R.Venturi- are all clearly expressed and anticipate what can be relevant and present in more than a project further done by the studio.
G.M.O.
 
click to enlargeclick to enlarge
 
click to enlargeclick to enlarge
 
yesterday's projects index